- 2016.11.22
- 札幌市中央区新規分譲リース物件情報!
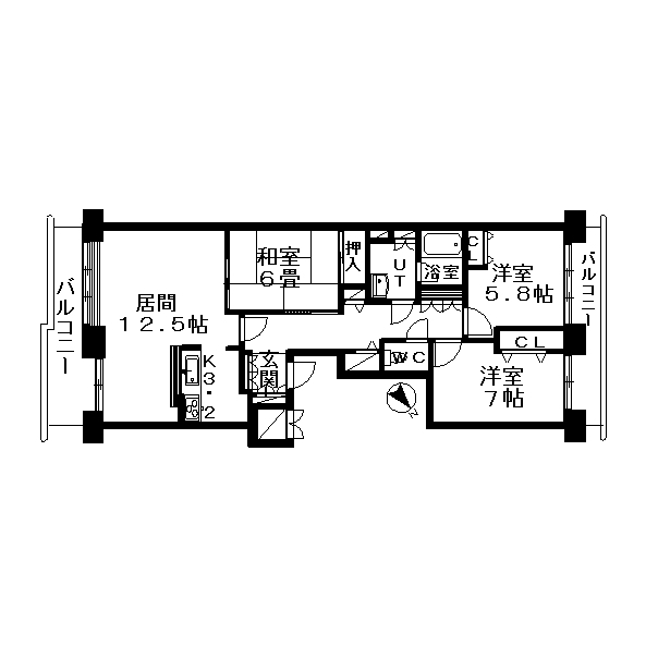
名称:ディアハイム山鼻南 1205号室
住所:札幌市中央区南26条西13丁目1番20号
3LDK(LDK15.7帖、洋7帖、洋5.8帖、和6帖)
家賃 90,000円
★市電中央図書館停徒歩9分
★12階部分・南向き、眺望良好
★対面キッチン
★利便施設充実

名称:ディアハイム山鼻南 1205号室
住所:札幌市中央区南26条西13丁目1番20号
3LDK(LDK15.7帖、洋7帖、洋5.8帖、和6帖)
家賃 90,000円
★市電中央図書館停徒歩9分
★12階部分・南向き、眺望良好
★対面キッチン
★利便施設充実