- 2016.12.25
- 札幌市中央区新規分譲リース物件情報!
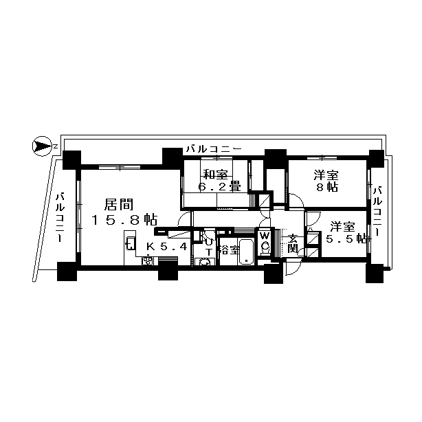
名称:クルーザーバレータワーS2 201号室
住所:札幌市中央区南2条西8丁目11番地1
3LDK(LDK21.2帖、洋8帖、洋5.5帖、和6.2帖)
家賃 125,000円
★地下鉄東西線西11丁目駅徒歩6分
★3面バルコニー
★全室収納
★和室以外の居室はフローリング

名称:クルーザーバレータワーS2 201号室
住所:札幌市中央区南2条西8丁目11番地1
3LDK(LDK21.2帖、洋8帖、洋5.5帖、和6.2帖)
家賃 125,000円
★地下鉄東西線西11丁目駅徒歩6分
★3面バルコニー
★全室収納
★和室以外の居室はフローリング